中古一戸建て磐田市川袋
物件概要
- 所在地
- 磐田市川袋
- 価格
- 1,690 万円
- 交通
-
東海道線 豊田町駅 バス停白羽 まで 徒歩2分
- 接道状況
- 南側 公道6m
- 土地面積
- 公簿 334.25㎡ (101.11坪)
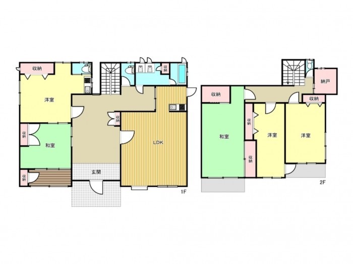
- 建物面積
- 94.40㎡ (28.55坪)
- 間取り
- 5SLDK
- 築年数
-
1993年
(平成5)
3月
築32年 - 建ぺい率
- 60%
- 容積率
- 150%
- 土地権利
- 所有権
- 構造および階数
- 木造 地上2階建
- 小学校区
- 竜洋西 (368m)
- 中学校区
- 竜洋 (1100m)
- 私道負担
- 無
- 地目
- 宅地
- 現況
- 空
- 引渡時期
- 相談
- 駐車場
- 上水道
- 下水道
- ガス
- 都市計画
- 市街化区域
- 用途地域
- 1種中高
- 設備・条件
- 備考
- 取引態様
- 仲介
その他周辺物件
この物件は108人の方が興味を持っています。

